26357 Alcott Union Drive

$ 685,000

Murrieta, CA 92563

Closed

6 Beds, 4 Baths, 2,740 sq. ft.

Sold: 12/17/2024


Listing provided by agent Jason Devor BRE# 01954137 at Hit Home Realty.


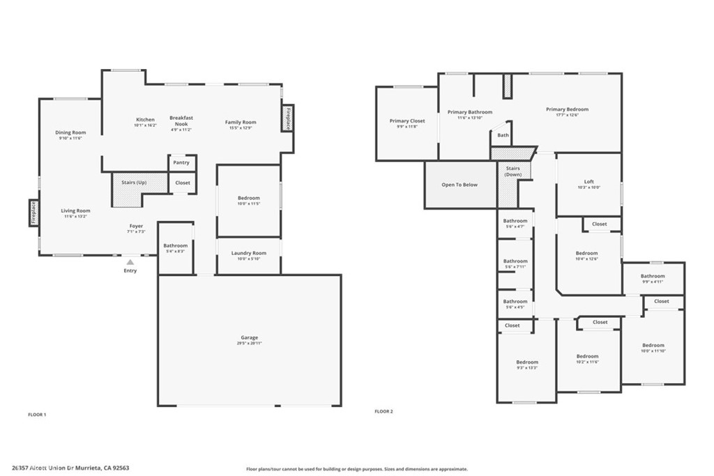
Set within a desirable gated community in Murrieta, this elegant two-story home with 3 car garage offers a blend of modern convenience and comfort. The fully paid-off solar system with net metering is a standout feature, providing sustainable energy and significant savings that can be easily transferred to the new homeowner. As you step inside, the freshly painted interior and brand-new carpets create an inviting atmosphere. The spacious living area, highlighted by high ceilings and a cozy fireplace, flows effortlessly into the dining and kitchen spaces, creating an ideal environment for gatherings and relaxation. The kitchen features granite countertops, plentiful cabinet space, and a functional island perfect for culinary endeavors and casual dining. Upstairs, you will find a loft that can also be used as an addition bedroom; as well as the generously sized primary suite is a true retreat, complete with an en-suite bathroom featuring dual sinks and ample space for relaxation. Additional rooms are well-suited for various uses, whether as bedrooms, home offices, or creative spaces. Outdoors, the property features low-maintenance turf in both the front and backyard, providing the beauty of lush greenery without the upkeep. The backyard is well-suited for outdoor dining, entertaining, or simply unwinding. Situated near local amenities, parks, and schools, this home offers not just a place to live, but a place to thrive. Experience the ease and comfort this move-in-ready home provides within its secure and welcoming community.

Aerial View:

Quick Facts:

  • Home Size: 2,740 sq.ft.
  • Price/sq.ft.: $246.31
  • Lot Size: 5,227 sq.ft.
  • Built in 2002
  • Garages Spaces: 3
  • Fireplace
  • Pool

Map:

Property Details:

Assessor’s Parcel Number 913400040
Homeowner’s Association on file
Days on Market 405
Last Modified December 19th at 9:04am
Listing Status Closed
Price Per Sq. Ft. $246.31
Property Type Single Family Residence
Sewage System Public Sewer
Virtual Tour Click here
Water Source Public
Year Built 2002
HOA Dues $85.00

Interior Features:

Bathrooms 4 full baths
Bedrooms 6
Cooling Central Air
Fireplace Living Room
Floorspace 2,740 sq. ft.
Heating Central
Laundry Facilities Individual Room, Inside

Exterior Details:

Acres 0.12
Lot Size 5,227 sq. ft.
Garage Spaces 3
Pool Features Community

School Information:

School District Murrieta

Nearby Schools in Murrieta

School Name Parent Rating Distance Map

0.5 mi.

3.9 mi.

3.0 mi.

School data provided by GreatSchools. School service boundaries are intended to be used as reference only. To verify enrollment eligibility for a property, contact the school directly.



Updated: 2024-12-19 09:04:54

Any questions? Contact Tom Bashe.